As-Built Survey CAD Drafting – Commercial & Residential Sites (USA)
Accurate as-built survey CAD drafting prepared from field data to document existing site conditions for U.S. survey and engineering projects.
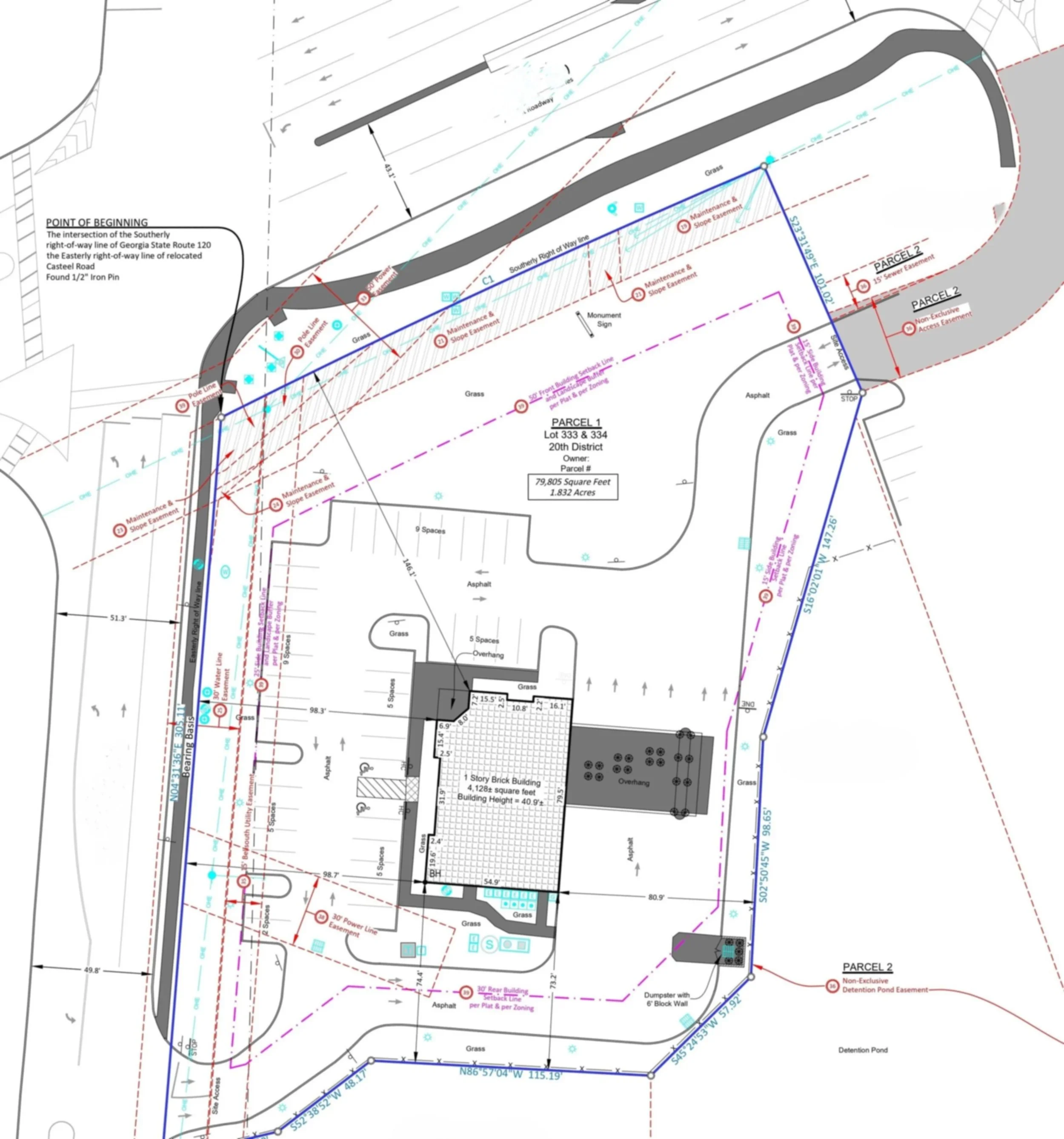
Project Overview:
This project involved preparing detailed as-built survey CAD drawings based on field survey data collected after construction. The drawings accurately represent existing site conditions, including buildings, pavements, utilities, and site features, and were prepared as survey-ready CAD deliverables for professional use in the United States.
Scope of Work:
• As-built survey CAD drafting from field survey data
• Existing building footprints and structural features
• Pavements, curbs, sidewalks, and access drives
• Utility features and surface improvements (as provided)
• Accurate annotation of existing site conditions
• Clean CAD layering and labeling per client standards
Tools Used:
AutoCAD, Civil 3D
Key Challenges & Solutions:
As-built surveys require precise representation of real-world conditions that may differ from design drawings. The site included multiple constructed elements with irregular alignments and varying elevations. Our team carefully translated field data into accurate CAD linework, ensuring clarity, consistency, and reliable documentation of existing conditions.
Final Deliverables:
• Survey-ready DWG files
• Clearly documented existing site conditions
• Organized CAD layers for easy interpretation
• Drawings suitable for engineering review and future planning

