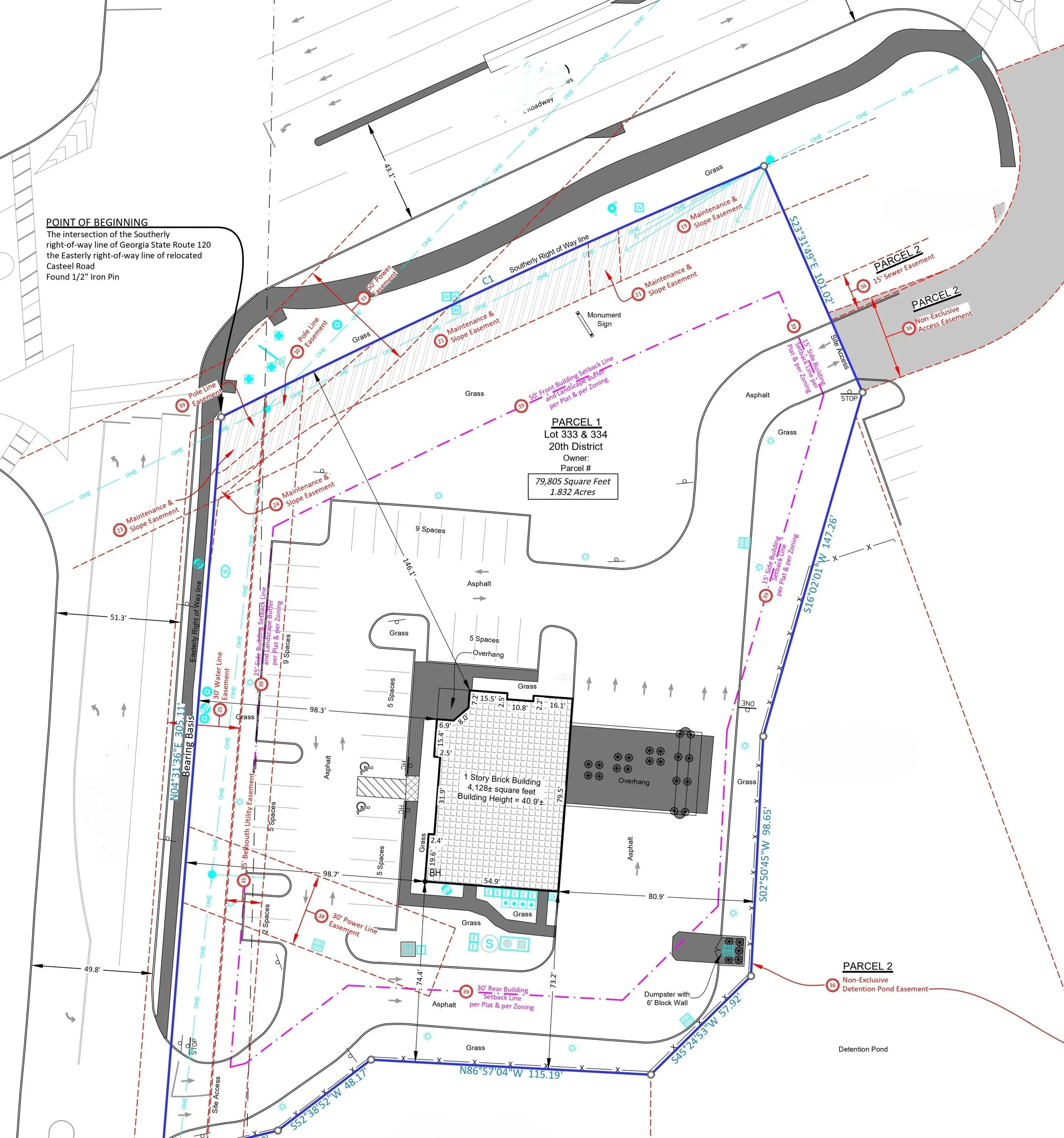
Our Work & Projects
A selection of CAD drafting and survey documentation projects delivered for surveyors and engineering firms across the U.S.
Our experience includes 2000+ completed projects supporting ALTA/NSPS surveys, boundary resolution, easement plotting, and survey documentation for commercial, residential, and infrastructure developments across the U.S. The projects shown represent a sample of our work—demonstrating precision, reliability, and survey-ready CAD deliverables.

