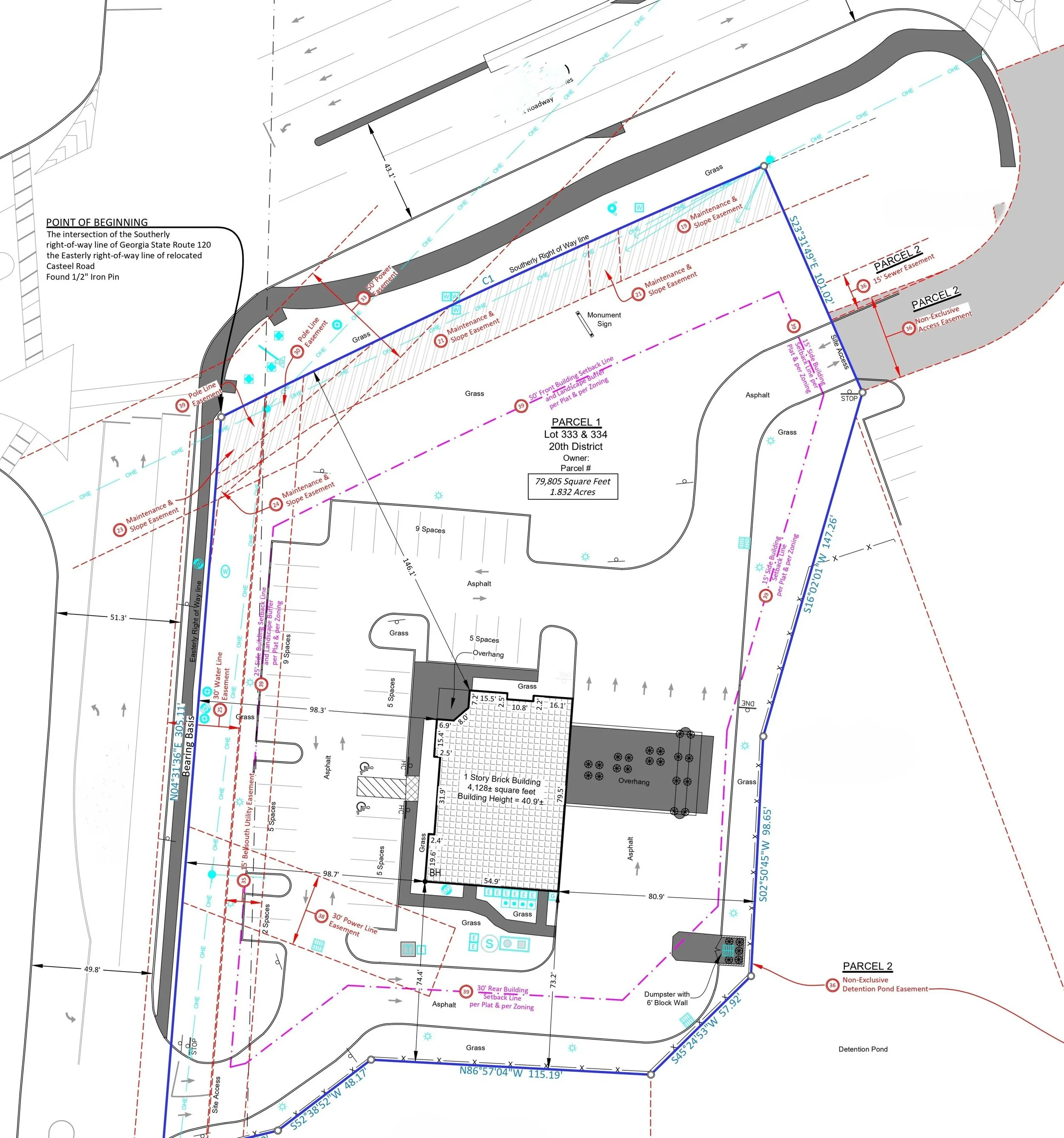
Project Overview
Converted post-construction field data into accurate as-built drawings reflecting actual site conditions.
Scope of Work
• Structure and utility drafting
• Site improvements plotting
• Annotation and dimensioning
• Survey standard compliance
Tools Used
AutoCAD | Civil 3D
Deliverables
As-built CAD drawings suitable for record documentation.

